Description
Bureaux modernes esprit loft – Plainpalais
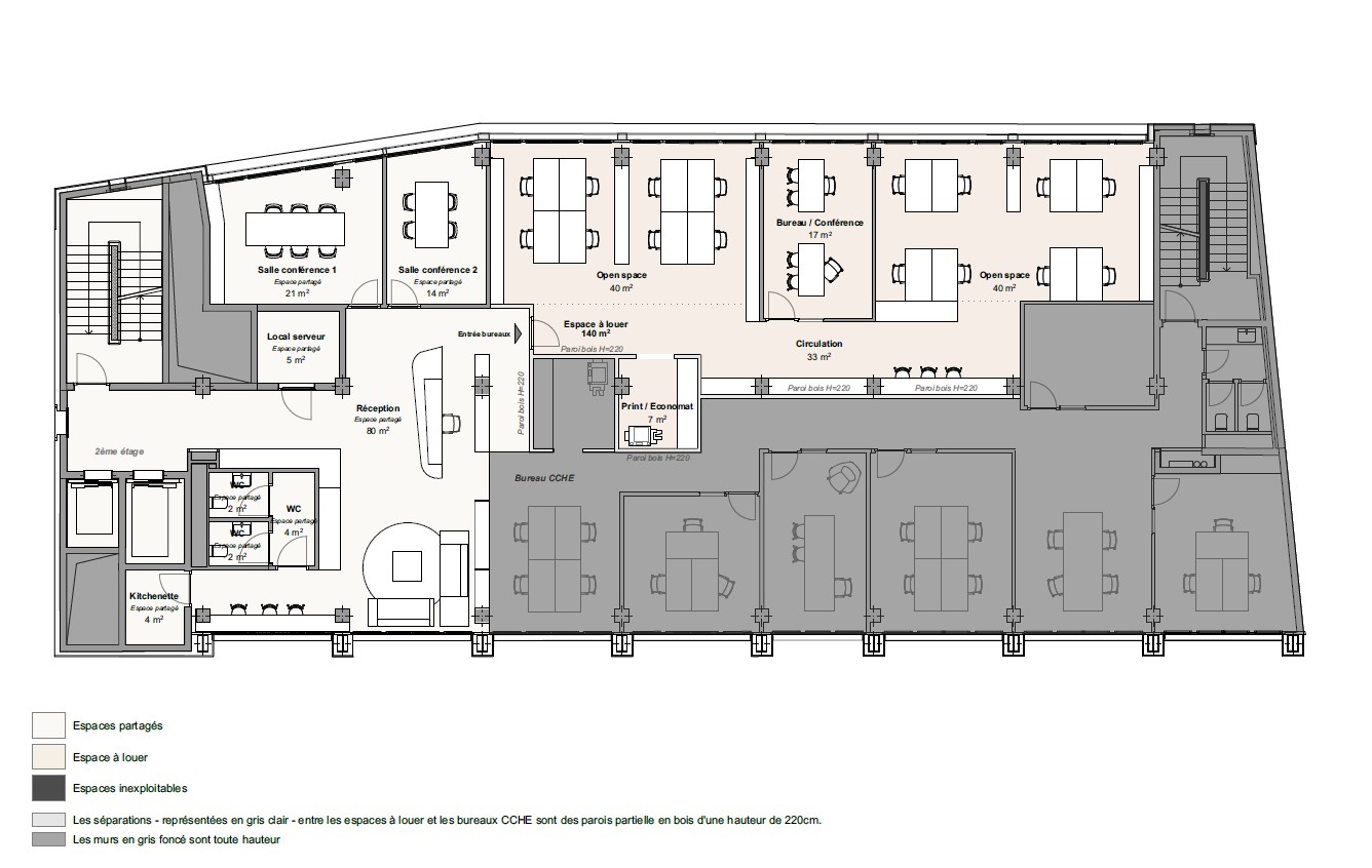
Situés à proximité immédiate de Plainpalais, au sein d’un espace contemporain de 270 m², nous vous proposons à la sous-location de superbes bureaux modernes au style loft.
La surface privative d’environ 140 m², entièrement aménagée, câblée et meublée, se compose :
- de deux open spaces,
- d’une salle de conférence.
Des espaces partagés d’environ 130 m² complètent l’ensemble et comprennent :
- une réception,
- un local serveur,
- deux grandes salles de conférence disponibles sur réservation,
- une kitchenette et des sanitaires situés dans la zone commune, réservés à l’usage exclusif du sous-locataire.
Des prestations complémentaires sont incluses dans le loyer, telles que le service de réception, le mobilier, le nettoyage des surfaces privatives et communes ainsi que l’utilisation des salles de conférence.
En complément, il est possible de louer un local de stockage de 23 m² ainsi qu’un vestiaire privatif avec douche, tous deux situés en sous-sol.
Durée de sous-location flexible, jusqu’au 31 mai 2033.
Disponibilité immédiate.
Conveniences
Neighbourhood
- Shops/Stores
- Bus stop
- Tram stop











