Description
À louer – Bureaux de standing, Rue du Mont-Blanc 7
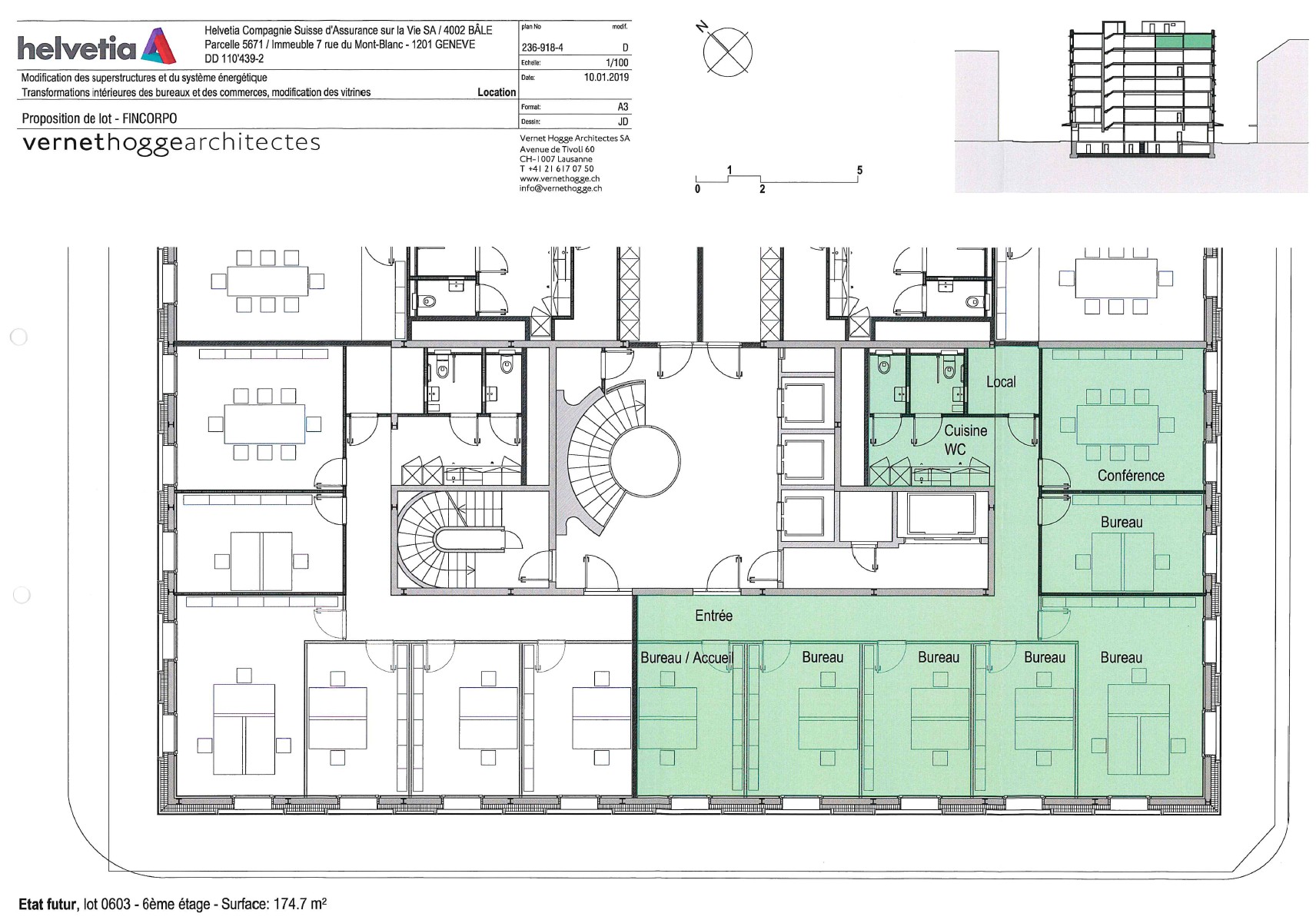
Surface située au 6e étage d’un immeuble moderne, à deux pas du lac, de la Gare Cornavin et des grands hôtels.
Description
- Espace réception en entrée
- Grand open space (divisible en 3 bureaux)
- Bureau d’angle lumineux
- Petit bureau + salle de conférence
- Local IT, cuisine équipée, 2 sanitaires
Équipements
- Faux plancher technique
- Air rafraîchi
- Câblage informatique
- Finitions soignées
Atouts
- Adresse prestigieuse
- Quartier central, commerces & transports
Distances
Station
482 m
9'
6'
9'
Public transports
89 m
2'
2'
1'
Stores
368 m
6'
6'
2'
Post office
192 m
4'
4'
3'
Bank
45 m
1'
1'
1'
Restaurants
10 m
-
-
-
Park / Green space
76 m
2'
2'
1'














